The ruler tool lets you measure the distance between any two points in feet/inches. Drawings are created at various scales, so it’s essential to calibrate the ruler tool individually for each drawing.
- If the plan sheet includes a clear printed scale, Linarc detects it automatically and auto-calibrates the ruler tool. An indicator appears each time you open the sheet, confirming that the scale has been applied.
- If the sheet does not show a visible scale—or if multiple drawings with different scales appear on the same sheet—the system cannot determine the scale automatically. In such cases, you must complete a one-time manual calibration.
This article explains how to manually calibrate the measurement tool for a plan sheet and create a length markup. This is useful, for example, to measure the distance between two points and mark the same distance/area on a different location in the drawing.
Calibrate the Ruler
- Open the plan.
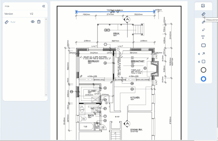
- Identify a location on the drawing with known dimensions, for example, a length marking between two points in the drawing. An example is shown below:

- Select the 'ruler' tool
- Click on the location of the drawing where you want to place the ruler.
- Click the line to select it.
- Drag the handles at the ends to resize the line to cover the distance of the known dimension.

- Double-click on the line
- Enter the known dimension in the 'Enter the Scale' box in feet/inches. For example, 26'00"
- Click 'Submit' to save the calibration
You can change the color and stroke width of the line using the 'Stroke' tool.
- If you want to add a length markup, continue as explained below
- If you want to just save the calibration, click 'Save Markup'
Add a Length Markup
Prerequisite: You should have calibrated the ruler before adding a length markup.
- Select the 'ruler' tool
- Click on the location of the drawing where you want to place the length markup.
- Drag the handles at the ends to resize the line and cover the unknown distance.
The line shows the dimension in feet/inches.

You can change the color and stroke width of the line if required.
To move the line with the dimension to a different location, click the line to select and drag it to the required location.
To change the color and stroke width
- Click on the arrow to select it
- Click the 'Stroke' tool
- Choose the color from the palette
- Alternatively, use the color picker at the bottom right to choose a custom color
- Size - Use the slider to set up the brush width for the markup
Your selection takes effect on the currently selected markup and is auto-saved for your next markup tool.
The markup element is added as a layer to the 'Draft' group. It is shown in the layer editor on the left.
- Use the
icon to show or hide the layer - Click the
icon to remove an element added by mistake - Click the element label in the layer editor and edit it with a brief description of its purpose, if needed, to keep your elements organized
- Go to the next tool if you want to add more markup elements
Once you are done with the markup elements, save the layer group as a markup. See Publish Markups for more
Was this article helpful?
That’s Great!
Thank you for your feedback
Sorry! We couldn't be helpful
Thank you for your feedback
Feedback sent
We appreciate your effort and will try to fix the article