The shape tools let you highlight any area or object on a plan using squares, rectangles, circles, ellipses, or triangles. When a sheet is pre-calibrated, each shape automatically displays key dimensions such as length, width, and area.
- If the plan includes a clear printed scale, Linarc detects and applies it automatically. An indicator confirms the applied scale when you open the sheet.
- If no readable scale is present—or if the sheet contains drawings with different scales—you’ll need to complete a one-time manual calibration. For instructions, see here.
Tip:
- For irregular areas, use a polygon markup. See Mark an Area with Polygon for details.
- To simply highlight or draw attention to a region, use a cloud markup. See Mark an Area with Cloud Shape for guidance.
To add an area markup
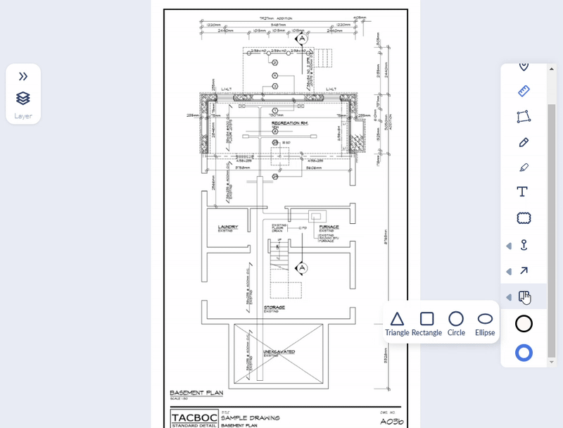
- Click the 'Shapes' tool on the toolbar
- Choose the square, circle, or triangle markup tool
- Square - Make a square or rectangular box markup
- Circle - Make a round or ellipse markup
- Triangle - Use a triangle to mark an area

- Draw the shape roughly on the spot using a click-and-drag action.
- Click and drag the shape to position it precisely where you want it.
- Use the corner and side handles to resize the element as needed.
The markup is added with the color, stroke width, and fill, with default settings or as set in the 'Stroke' tool and the 'Fill' tool. You can change them as required.
You can also clone the markup to mark similar area on a different spot in the drawing. See Clone and Reuse Markups if you need guidance on it.
To change the stroke color, width, and fill color
- Click on the markup to select it
- Click the 'Stroke' tool
- Choose the color from the palette
- Alternatively, use the color picker at the bottom right to choose a custom color.
- Size - Use the slider to set up the brush width for the markup
- Click the 'Fill' tool
- Choose the color from the palette
- Alternatively, use the color picker at the bottom right to choose a custom color
- Opacity - Use the slider to set up the transparency of the color fill
Your selection takes effect on the currently selected markup and is auto-saved for your next markup tool.
The markup element is added as a layer to the 'Draft' group. It is shown in the layer editor on the left.
- Use the
icon to show or hide the layer - Click the
icon to remove an element added by mistake - Click the element label in the layer editor and edit it with a brief description of its purpose, if needed, to keep your elements organized.
- Go to the next tool if you want to add more markup elements
- Once you are done with the markup elements, save the layer group as markup. See Publish Markups for more details.
Was this article helpful?
That’s Great!
Thank you for your feedback
Sorry! We couldn't be helpful
Thank you for your feedback
Feedback sent
We appreciate your effort and will try to fix the article