The text tool lets you add notes, comments, reminders, and more on any portion of the plan drawing. You can choose the text color and size of the text.
Add notes, comments, and reminders
- Choose the text tool from the toolbar.
- Click on the location of the drawing where you want to place the text.

- Type your notes in the 'Enter the text' box and click 'Add Text.'
- Click on the text and drag it to the exact location.
The text is added with the color and font size with default settings or as set in the 'Stroke' tool. You can change them as required.
To change the color and font size
- Click on the markup to select it
- Click the 'Stroke' tool
- Choose the color from the palette
- Alternatively, use the color picker at the bottom right to choose a custom color
- Size - Use the slider to adjust the font size. You can also resize the text by dragging the handles at the corners of the text box.
Your selection takes effect on the currently selected markup and is auto-saved for your next markup tool.
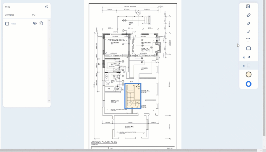
The markup element is added as a layer to the 'Draft' group. It is shown in the layer editor on the left.
- Use the
icon to show or hide the layer - Click the
icon to remove an element added by mistake - Click the element label in the layer editor and edit it with a brief description of its purpose, if needed, to keep your elements organized.
- Go to the next tool if you want to add more markup elements.
- Once you are done with the markup elements, save the layer group as a markup. See Publish Markups for more details.
Was this article helpful?
That’s Great!
Thank you for your feedback
Sorry! We couldn't be helpful
Thank you for your feedback
Feedback sent
We appreciate your effort and will try to fix the article